Description
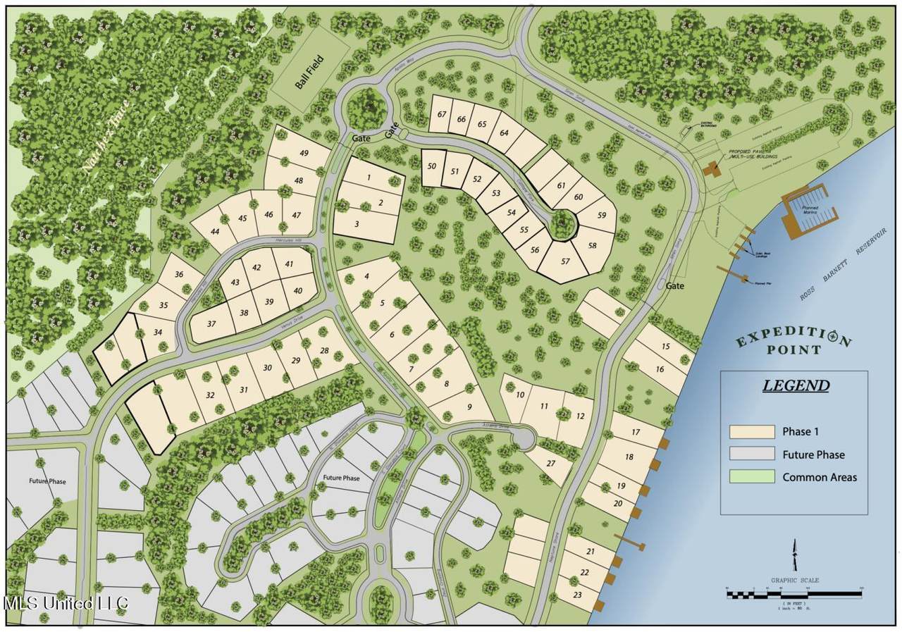
If you are looking for a new home site with many amenities look no further. Welcome to Expedition Point which is situated on a series of ridges elevated sixty feet above the water at the Barnett Reservoir and has its own exit directly off the Natchez Trace. This elevation allows views of the water from the majority of homesites, most adjacent to green space in a park-like setting. All underground utilities are in place. We have both small and large lots with a minimum 2,000 square foot home required. Expedition Point may also be reached from Rankin County by Highway 43.
-
0BEDS
-
0.34ACRES
-
0BATHS
-
01/2 BATHS
School Information
Description
If you are looking for a new home site with many amenities look no further. Welcome to Expedition Point which is situated on a series of ridges elevated sixty feet above the water at the Barnett Reservoir and has its own exit directly off the Natchez Trace. This elevation allows views of the water from the majority of homesites, most adjacent to green space in a park-like setting. All underground utilities are in place. We have both small and large lots with a minimum 2,000 square foot home required. Expedition Point may also be reached from Rankin County by Highway 43.
